Building permit DRAWING -Click 点击更多细节
New House Plan Design, Legalize Secondary drawing; City Permit 新房设计 旧房改装 办公室装修 专业建筑图纸审批.
PROFESSIONAL & CARE 专业与关怀,为客户争取更多
New House Plan Design, Legalize Secondary drawing; City Permit 新房设计 旧房改装 办公室装修 专业建筑图纸审批.
full service interior design, on site service! 专业设计图纸,2D 3D 效果图 选择材料,管理跟踪.
Renovation houses updated kitchens, Bathrooms. 旧屋翻新设计,厨卫设计与装修一站完成
MORE DETAIL CLICK IT 点击更多细节
CABINET LOCAL CUSTOM MADE / Click for more点击更多细节.
设计与厨柜订制安装一站式,设计师选择无甲醇材料,进口五金,提供中高质量技术精细手工订做柜
CARE & DETAIL 工地监督与管理 We are seriously about design, site visit following up 工地跟踪
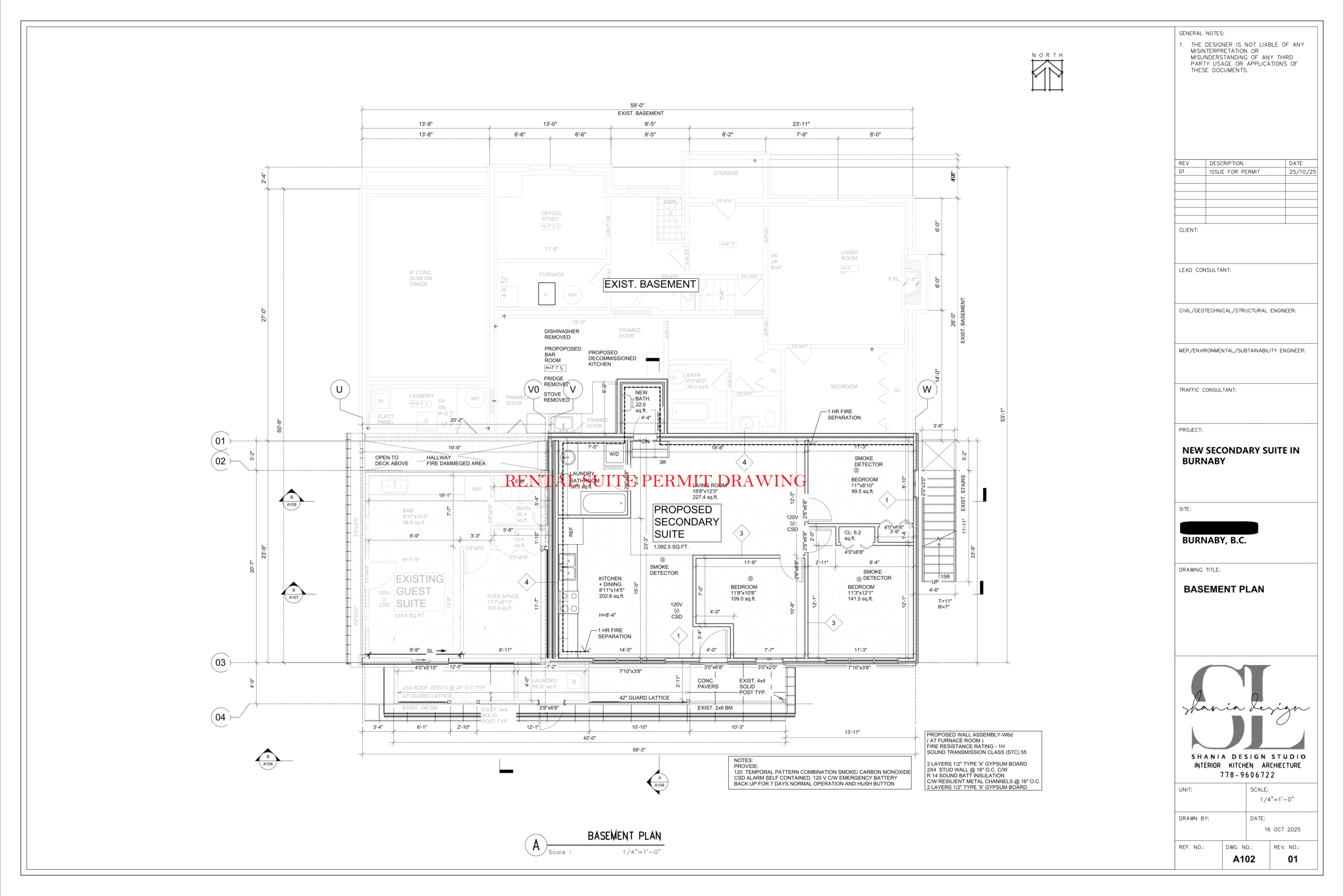
$1000 Per Permit Building Drawing Professionally done fast.
Provides permit design drawings for legalizing rental suites, additions. office commercial tenant improvement. We help clients handle city reports and fines by communicating directly with the city. Our professional knowledge and experience help resolve issues quickly — no pressure!
Located in Vancouver, service Great Vancouver in person or remotely; Service Canada remotely.
审批建筑图纸服务 $1000/张
经验的团队审批图纸,配套可提供结构工程图纸与其它项目GEO,能源工程师盖章图纸,SURVEY土地测量。一改多新房设计 旧房加建
办公商铺装修或入驻图纸与申请
Benefits of Working with a Designer:
Personalized 1-on-1 service with on-site measurements.
Custom designs that blend your ideas with our expertise.
Exclusive trade discounts (up to 50% off) on materials.
Hassle-free experience: We manage the entire renovation, saving you time, stress, and money.
设计师全程跟进装修一站式:设计--订制--施工监督 与设计师工作的有利处:
提供一对一设计服务
设计前,设计师实地量房.
业主细心沟通设计,客户的想法,结合设计师的专业知识,为客户做出效果图,颜色搭配设计方案;
与客户选择材料,享用设计师50% OFF 折扣. 购买时可以在设计合作的以批发价或折扣的供货商选购商品。
省时、省事、省空间:
装修可以成为一件复杂、压力的工程,你只要跟随我们的标准上海步骤,让客户在时间和精力减少困惑;正规专业的程序,让装修有序有效率进展完成并取得最大性价比效果。
CLIENT GENUINE FEEDBACK 客户真实反馈
The Tax Accountant
2 reviews
2 months ago
Positive: Professionalism, Punctuality, Quality, Responsiveness, Value
Shania is very professional and experienced in the field of interior design. She is excellent with respect to providing design advises and recommendations (i.e. interior structure, color mix and matching, cabinet and counter top design, appliance matching, etc.). I especially like the way that Shania is very responsible and taking care of my jobs from A to Z, so that I don't have to worry about the process. I will be the first one to refer new clients/ leads to Shania when interior design comes to my mind. Keep up the great work Shania! :)
Nelson Ip - owner of 3075 Venable Street, Vancouver, BC.
Annie Liu
1 review
2 months ago
Shania is good at interior design. She helped me renovate my kitchen, bathroom, and fireplace. The most important advantage is she can understand both Eastern and Western culture, and is familiar with local factories. Though sometimes we had quarrels with different opinions, I believe it's a good thing for both of us to express our thoughts and bring up a good and final solution that satisfies both the customer and designer ends. I would like to give her a 5-star!
"Shania is stylish and listened our need deliver what we dream about a home! Highly recommend "10分钟谈话中,我们已经知道这位设计师SHANIA非常专业,30分钟初次会面已经让我们学习了很多材料与装修知识,很放心让她来管理装修。他们的专业与认真负责,使我们的装修轻松容易多了。感恩!
Renovation residence LI